埼玉県内の貸倉庫・貸工場・賃貸土地の情報満載(トップ) > 埼玉のエリアで探す > 川口市 > 川口 > 川口市榛松2-30-20 川口 倉庫
埼玉県川口市榛松2-30-20 (川口) 川口 倉庫 詳細データ
この物件の物件番号は8646です。お電話(03-6260-658603-6260-6586)でお問合せの際は物件番号をお知らせ下さい。「埼玉倉庫ドットコムを見て」とお伝えいただくと話がスムーズに進みます。※不動産業者様へのご紹介は不可です。
| 物件名 | 川口 倉庫 |
|---|---|
| 沿線/駅 | JR京浜東北線 / 川口 |
| バス/徒歩 | バス:25 分 / 徒歩:- |
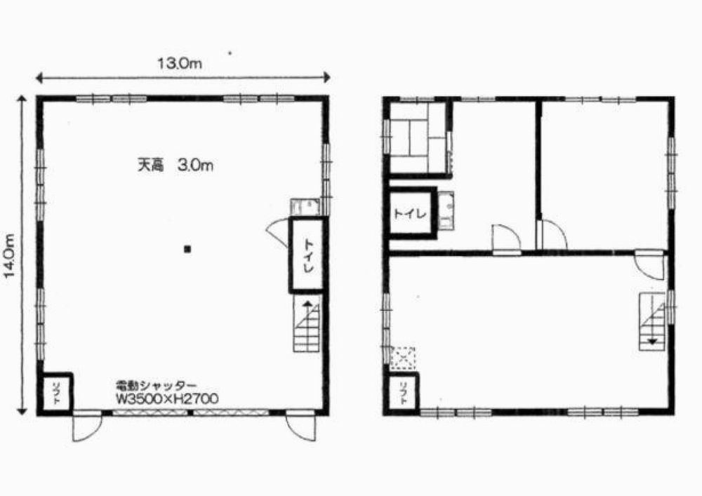
| 所在地 | 埼玉県川口市榛松2-30-20 |
| 賃料(坪・円) | 坪 4,995 円 (総額 550,000 円) |
| 共益費 | |
| 使用面積 | 110.11 坪 |
| 敷地面積 | 坪 |
| 礼金 | 2 ヶ月 |
| 敷金 | 6 ヶ月 |
| 保証金 | |
| 構造 | 鉄骨造 |
| 竣工年 | 1999 年 |
| 所在階 | 1-2/2 階 |
| 接道状況 | |
| 用途地域 | 第一種住居地域 |
| 駐車場 | 有 |
| 契約期間 | 3 年 |
| 現況 | 現空 |
| 備考 | 駐車スペース有 トイレ エアコン 電動シャッター リフト |
| 貸倉庫・貸工場・賃貸土地の事業用ポータルサイトNo.1 |
|---|
|
埼玉県川口市榛松2-30-20の貸倉庫・貸工場・賃貸土地を探すなら中小企業を応援する埼玉貸倉庫.comでニーズに合った物件を検索してください。埼玉県川口市榛松2-30-20の事務所付貸倉庫、クレーン付、店舗倉庫、工業専用地域等、何なりと営業担当者にお申し付けください。その他、埼玉県川口市榛松2-30-20の貸し倉庫・貸し工場・賃貸土地を貸したい方には無料にて査定・掲載いたしますので当社のオーナーサポートシステムをご利用ください。埼玉県川口市榛松2-30-20で貸倉庫・貸工場・賃貸土地を契約のテナント様には貸し倉庫・貸し工場の設計変更、造作のご相談も承ります。貸倉庫・貸工場・賃貸土地の移転・新規開設は埼玉エリア最大級、新着情報満載、埼玉貸倉庫.com! |











